今日はパークハウス名古屋のブリリアントスクエア(以下B棟)の価格表を入手しましたのでお伝えします。
Part1:概要と各棟
Part2:建物・内装と共用設備
Part3:駐車場と価格、管理費
Part4:まとめ
Part5:ブリリアントスクエア(B棟)速報
Part6:ブリリアントスクエア(B棟)価格表※今回
Part7:アベニュースクエア(A棟)速報
※2021年4月28日にA棟の速報を更新しました
注意点
前回書き忘れてしまったのですが、以下の間取りの一定以下の階数には、バルコニー前面に他の建物のかぶりがあります。
B-70Aタイプ:10階未満
B-60Bタイプ:8階未満
B-60Aタイプ:8階未満
画像出典: ザ・パークハウス名古屋公式ホームページより
上記の図の通り、真ん中の3住戸が被る対象です。
実際のイメージについては、モデルルームで見せてもらえるので確認したほうが良いです。
価格表
まだ確定ではなく10万円単位の最終価格は出ていないという段階です。
そのため、今回の坪単価計算は全て10万円台は90万円として算出しています。
例)7,200万円台→7,290万円として計算
また、管理費、修繕費の平米単価は
管理費:186円/平米/月
修繕費:109円/平米/月
という水準です。
B-90Aタイプ
画像出典: ザ・パークハウス名古屋公式ホームページより
5階 7,200万円台 坪単価264.7万円
9階 7,600万円台 坪単価279.2万円
15階 8,000万円台 坪単価293.8万円
19階 8,100万円台 坪単価308.3万円
管理費・修繕積立金等合計:28,753円/月(予定/当初)
B-70Bタイプ
画像出典: ザ・パークハウス名古屋公式ホームページより
5階 6,400万円台 坪単価275.0万円
9階 6,500万円台 坪単価279.2万円
15階 6,800万円台 坪単価291.9万円
19階 7,100万円台 坪単価304.6万円
管理費・修繕積立金等合計:24,923円/月(予定/当初)
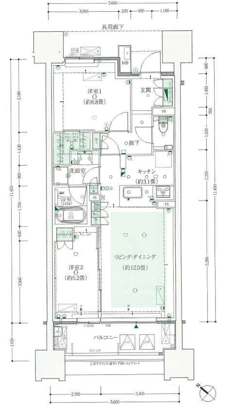
B-70Aタイプ
画像出典: ザ・パークハウス名古屋PLAN BOOKより
5階 5,700万円台 坪単価265.5万円
9階 5,900万円台 坪単価274.7万円
15階 6,300万円台 坪単価293.0万円
19階 6,600万円台 坪単価306.8万円
管理費・修繕積立金等合計:23,173円/月(予定/当初)
スポンサーリンク
B-60Bタイプ
画像出典: ザ・パークハウス名古屋PLAN BOOKより
5階 5,000万円台 坪単価269.7万円
9階 5,300万円台 坪単価285.6万円
15階 5,400万円台 坪単価290.9万円
19階 5,700万円台 坪単価306.8万円
管理費・修繕積立金等合計:20,303円/月(予定/当初)
B-60Aタイプ
画像出典: ザ・パークハウス名古屋公式ホームページより
5階 5,000万円台 坪単価274.8万円
9階 5,300万円台 坪単価291.0万円
15階 5,400万円台 坪単価296.4万円
19階 5,700万円台 坪単価312.6万円
管理費・修繕積立金等合計:19,963円/月(予定/当初)
B-80Aタイプ
画像出典: ザ・パークハウス名古屋公式ホームページより
5階 6,600万円台 坪単価273.7万円
9階 6,900万円台 坪単価286.0万円
15階 7,200万円台 坪単価298.3万円
19階 7,500万円台 坪単価310.5万円
管理費・修繕積立金等合計:25,743円/月(予定/当初)
まとめ
概ね速報でお伝えした内容から大きくは乖離していない結果です。
特に人気となりそうな2LDK-3LDKの部屋は30万円/坪程度の上昇となり、1割程度値上げしています。
Part1で書いた通り、B棟は他の棟に比べて特に強みがない棟です。
しかし、C棟、D棟と比較して割高なのはやはり気持ち的にネックとなってしまいますが、大規模開発において先行者利益が大きいのはマンション検討でよくあることなので割り切るしかないと思います。
ただ、このような事情を差し引いても、Part4で書いた通り、
- 今後おそらく出ることがない非常に貴重な物件
- 名古屋地区のこれまでの相場感からすると高く感じるが、将来的に見れば割安である可能性が高い
- 治安や嫌悪施設、中学校が多少懸念事項ではあるものの、子育て環境としても恵まれている
というのは変わらないと思います。
1期で抽選に参加していない人は当選率3倍の格差はありますが、検討してみる価値は充分だと思います。
今回は以上です。
皆様の参考になれば幸いです。












コメント