ザ・ファインタワー久屋大通のモデルルームを訪問しましたので数回に分けて報告致します。
Part3の今回は以下の内容を中心にまとめます。
・駐車場について
・間取りと眺望、販売について
・価格と管理費について
ザ・ファインタワー久屋大通の記事一覧は以下のページから飛べます。

物件の公式ホームページはこちらです。
今回の内容をザックリとまとめると下記のようになります。
- 駐車場は付帯率47%で、周辺相場を考えると妥当な価格
- 周辺環境は方角によるが一定以上の高さ以上(9-14階)がないと隣接建物を超えないが、南側は正面建物まで50m以上の距離があるので優位
- 価格は概ね坪単価300万円を余裕で超える設定になっており、12階以上は300万円代後半~400万円まで到達するので、はっきり言って高い
- 仕様が低い部屋とそうでない部屋の坪単価差や管理費の差がほとんどないので、低層1LDKの部屋の評価は厳しい目で見られる可能性が高い
駐車場について
付帯率と抽選について
駐車場は全163戸に対して76台分用意されており、付帯率は約47%です。
立地から考えると付帯率は高い方だと思いますが、半分以下ではあるので、車必須の人には厳しい設定です。
駐車場の割り当てついては、
- 間取りがB/C/J/K/Nタイプの部屋は駐車場優先権利あり
- 20階以上の部屋も駐車場優先権利あり
- 上記部屋の希望者を募った後に余った場合は抽選
とのことです。
駐車場の価格
駐車場の種類と価格は以下の通りです。
引用元: ザ・ファインタワー久屋大通価格表より作成
周辺の月極駐車場の価格帯と比較すると、タワーパーキングでも4万円弱するケースもあるので、価格は妥当だと思いますし、機械式に関してはお値打ちだと思います。
なお、このマンションは最近高級仕様マンションでは流行りの
「部屋からタワーパーキングを予約できるシステム」
は非採用です。
これは、コストカットの結果ではなく、上記システムを採用したマンションにおいて、
「予約した人が来なくて車を出すのに非常に時間がかかる」
というトラブルが頻発したため非採用にした、とのことでした。
その他
上記以外に、
- バイク置き場が4台分(4,000円/月)
- 自転車置き場は合計163台分(200円/月~500/月)
があります。
スポンサーリンク
間取りと眺望について
間取りについて
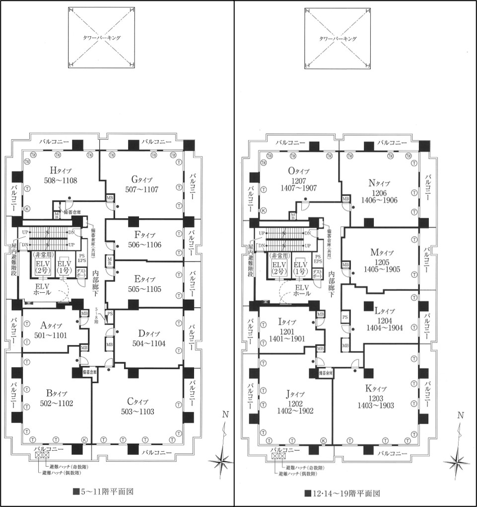
各住戸の配置図は以下の通りとなっています。
上記の通り、北側にはタワーパーキングが配置されており、G/H/O/Nタイプは主に洋室の正面にこのタワーパーキングが来ることになります。
各部屋の間取り構成は以下の通り、1LDK~3LDKの構成です。
引用元:ザ・ファインタワー久屋大通価格表より作成
一般的な方が手を出せる価格である19階までの割合としては、
1LDK:45部屋(33%)
2LDK:36部屋(27%)
3LDK:54部屋(40%)
といった構成になっています。
眺望について
周辺地図を書くとこんな感じになります。
眺望については、下記の通りです。
- 南:正面に14階建ての高いオフィスビルがある。ただ、上に抜けなくても道路幅が50m確保されているため圧迫感はない。
- 東:15m程度先に8階建の建物があり、その先にも12階、18階の建物が続く。ただし、18階建ての建物はこのマンション側に窓はない(窓っぽく見せる模様はある)ので人目は気にならない
- 北:そもそもこのマンションのタワーパーキングが20階程度まで被るので、G/H/O/Nタイプの寝室は正面にタワーパーキングが来る。その先のコインパーキングも今後どうなるか不明なのも不安要素。さらに、北西側にある※印の場所には嫌悪施設があり、訪問時にはマンションからこの施設の看板が見えるように設置されていたので低層階は注意。
- 西:真横6m程度のところにマンションがあり、9階程度から上に抜けるとのこと。そこを超えるとある程度先まで高い建物はない
価格と管理費
価格について
坪単価は概ね
- 11階まで:坪単価300-330万円程度
- 12-19階:坪単価350万円以上
といった感じです。
同等の場所がないので何とも言えませんが、グランドメゾン大須 ザ・タワーやプラウドタワー名駅南等より明らかに高いと考えると、お買い得感は薄いかもしれません。
ただ、久屋大通公園に近い立地でこの規模・グレードのマンションは希少だというところは評価する方が居てもおかしくないと思いますが、1LDKや一部低層の2LDKの仕様と坪単価の差分を考えるとちょっと、該当するグレードの価格には疑問は残りますね。
管理費について
なお、管理費と積立修繕は
管理費:258円/平米/月前後
積立修繕費:90円/平米/月前後
となっていました。
これは、下記物件と比較すると管理費は若干高く、修繕費はかなり安いという感じです。
【グランドメゾン大須 ザ・タワー】
管理費:220円/平米
修繕費:110円/平米
【NAGOYA The TOWER】
管理費:245円/平米
修繕費:120円/平米
【プラウドタワー名駅南】
管理費:223円/平米
修繕費:163円/平米
これ以外にもネット利用料が935円/月かかります。
修繕費については心配だったので確認したところ、
- 自転車は稼働率60%
- タワーパーキングは稼働率95%
- 機械式駐車場は稼働率90%
で計算し、それ以外の修繕計画も無理はしていない、とのことでした。
なお、昨日のグレード別仕様でも触れましたが、低層1LDKのプランにはディスポーザーのないなど仕様の高くないプランもあります。
しかし、管理費はディスポーザーが付くプランと変わらず、さらに坪単価も大きな差がないため、低層1LDKは厳しい目で見られてしまうかもしれません。
以下に間取りと坪単価イメージを掲載します。
価格表ついては記事最下部をご確認ください。
間取りと価格(一部抜粋)
Aタイプ/Iタイプ
画像出典:ザ・ファインタワー久屋大通プランブックより
面積:35.25㎡(1LDK)※Aタイプ
面積:37.10㎡(1LDK)※Iタイプ
【坪単価イメージ】
6階:318万円/坪前後(3,390万円想定)※Aタイプ
9階:327万円/坪前後(3,490万円想定)※Aタイプ
14階:364万円/坪前後(4,090万円想定)※Iタイプ
プランAは西側の中住戸で、眺望的にも恵まれているわけではないのですが、坪単価は安くはないです。
部屋の形としては使い勝手は良さそうです。
12-19階にほぼ同等の間取りのIプランがありますが、西の隣接建物の上に来る分、14階の坪単価が約364万円とさらに高額になっています。
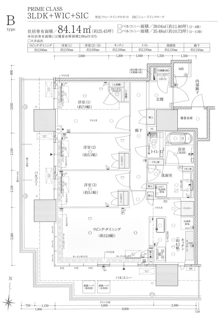
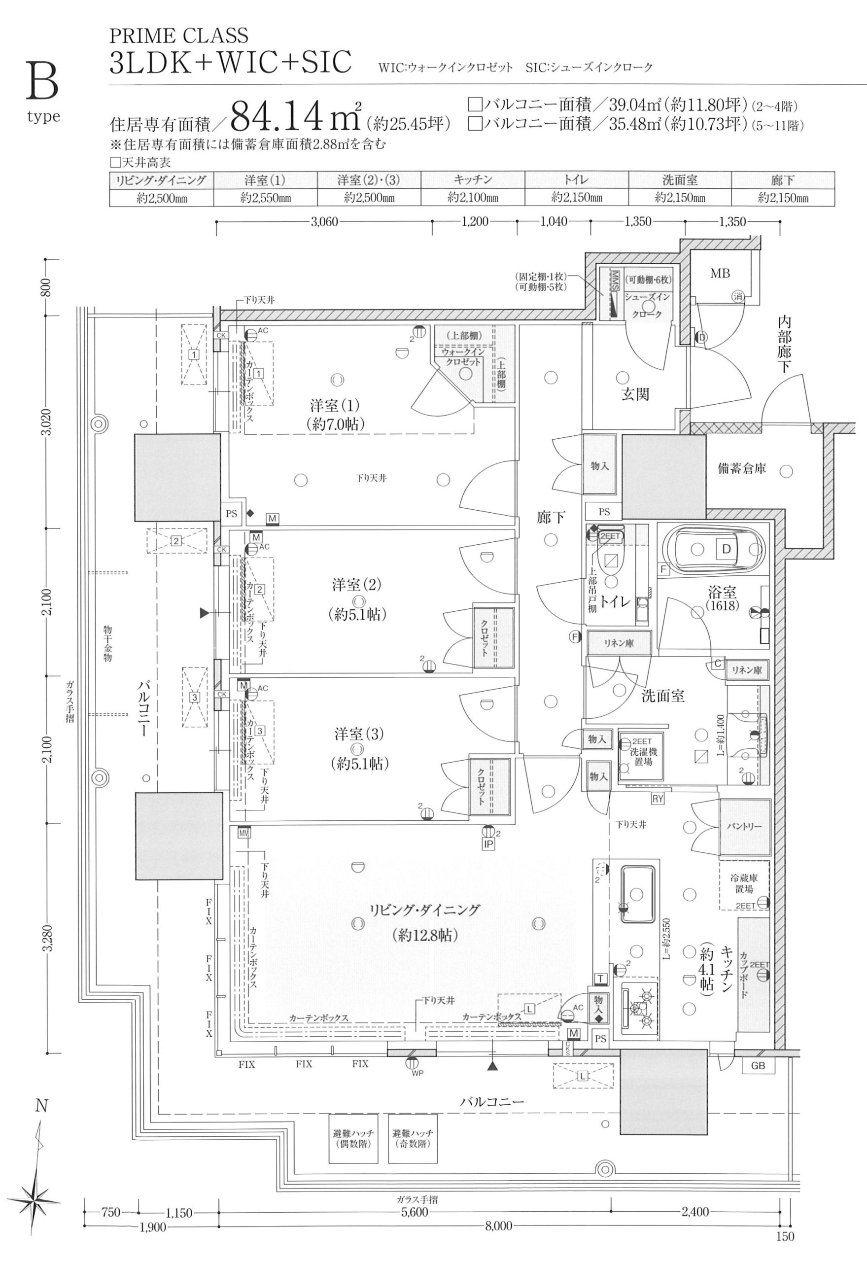
Bタイプ
画像出典:ザ・ファインタワー久屋大通プランブックより
面積:84.14㎡(3LDK)
【坪単価イメージ】
6階:325万円/坪前後(8,290万円想定)
9階:334万円/坪前後(8,490万円想定)
Bタイプは南西向きの角部屋で、間取り的には開放感がありそうで洋室等の形も恵まれています。
ある程度(9階以上程度)までいかないと西側の建物が近いので注意が必要だと思います。
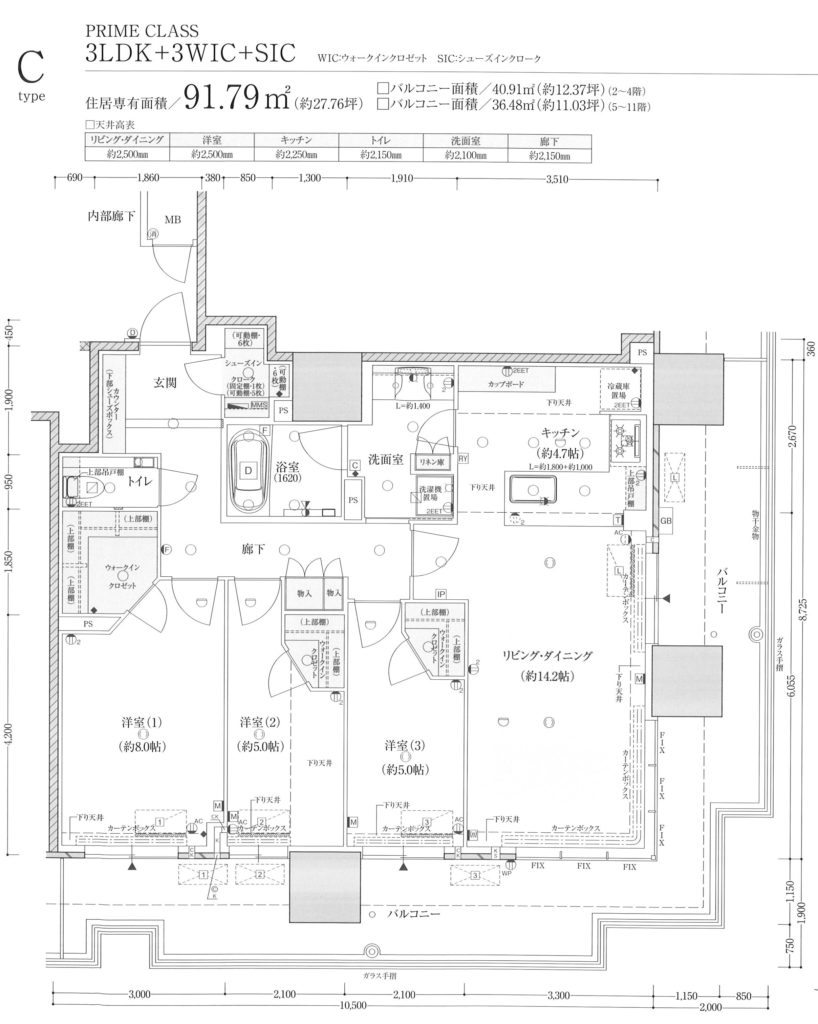
Cタイプ
画像出典:ザ・ファインタワー久屋大通プランブックより
面積:91.79㎡(3LDK)
【坪単価イメージ】
6階:345万円/坪前後(8,290万円想定)
Cタイプは南東向きの角部屋で、Bタイプと違って洋室が南を向いており、リビングもどちらかと言うと南がメインなので眺望的には有利です。
また、東側の建物も、西に比べれば多少余裕があります。
ただし、その分坪単価も乗っていますし、面積が広い分総額も10階程度まで行くと億を超えるので手を出せる人は限られると思います。
個人的には値段を考えなければ11階までの間取りではベストだと思います。
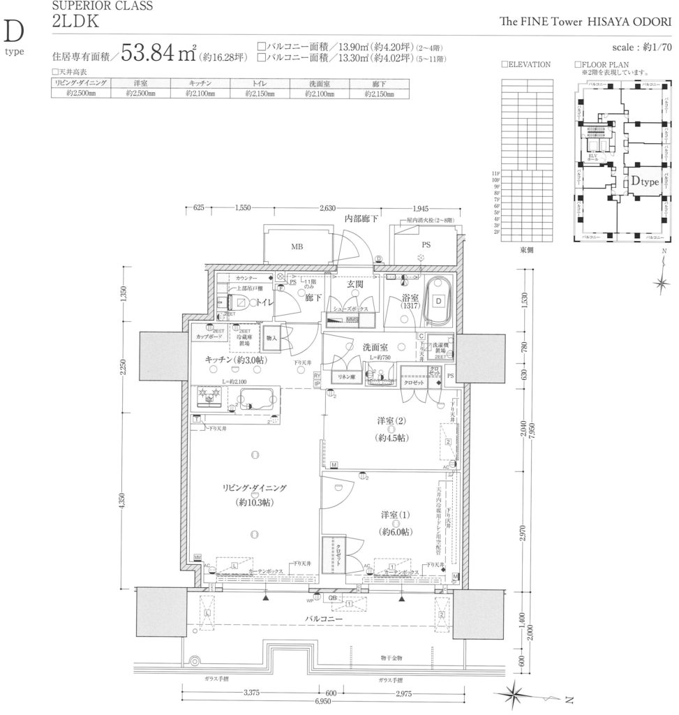
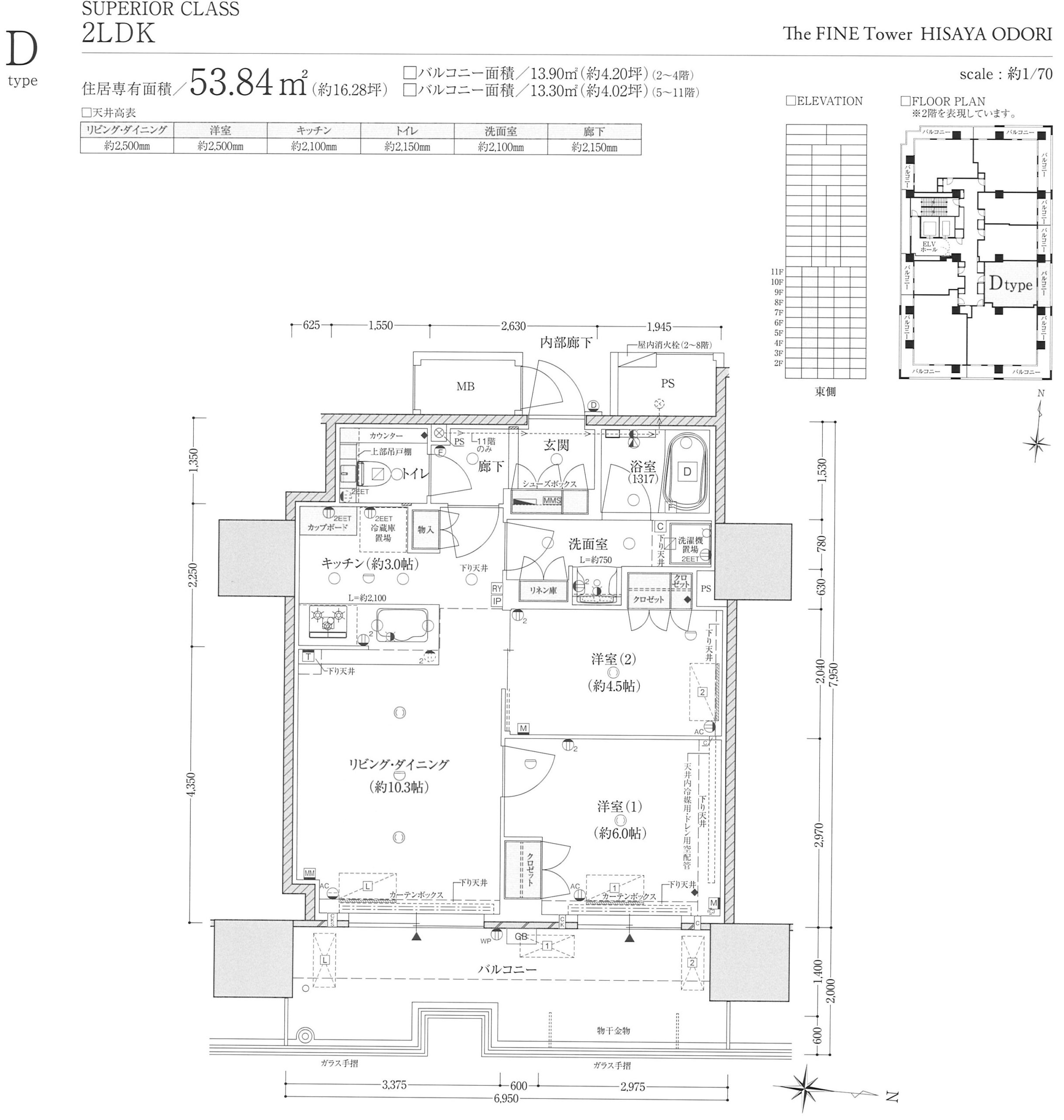
Dタイプ
画像出典:ザ・ファインタワー久屋大通プランブックより
面積:53.84㎡(2LDK)
【坪単価イメージ】
6階:318万円/坪前後(5,190万円想定)
9階:325万円/坪前後(5,290万円想定)
Dタイプは東向きの中住戸で、真横に8階建ての建物が全部屋で被ります。
一部住戸で植えに抜ける可能性がありますが、その先も12階、18階の建物があるので開放感を得るのは難しいかもしれません。
Fタイプ
画像出典:ザ・ファインタワー久屋大通プランブックより
面積:40.72㎡(1LDK)
【坪単価イメージ】
6階:316万円/坪前後(3,890万円想定)
9階:324万円/坪前後(3,990万円想定)
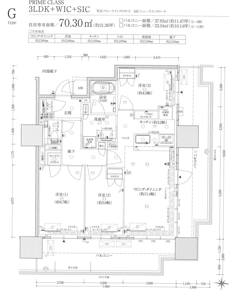
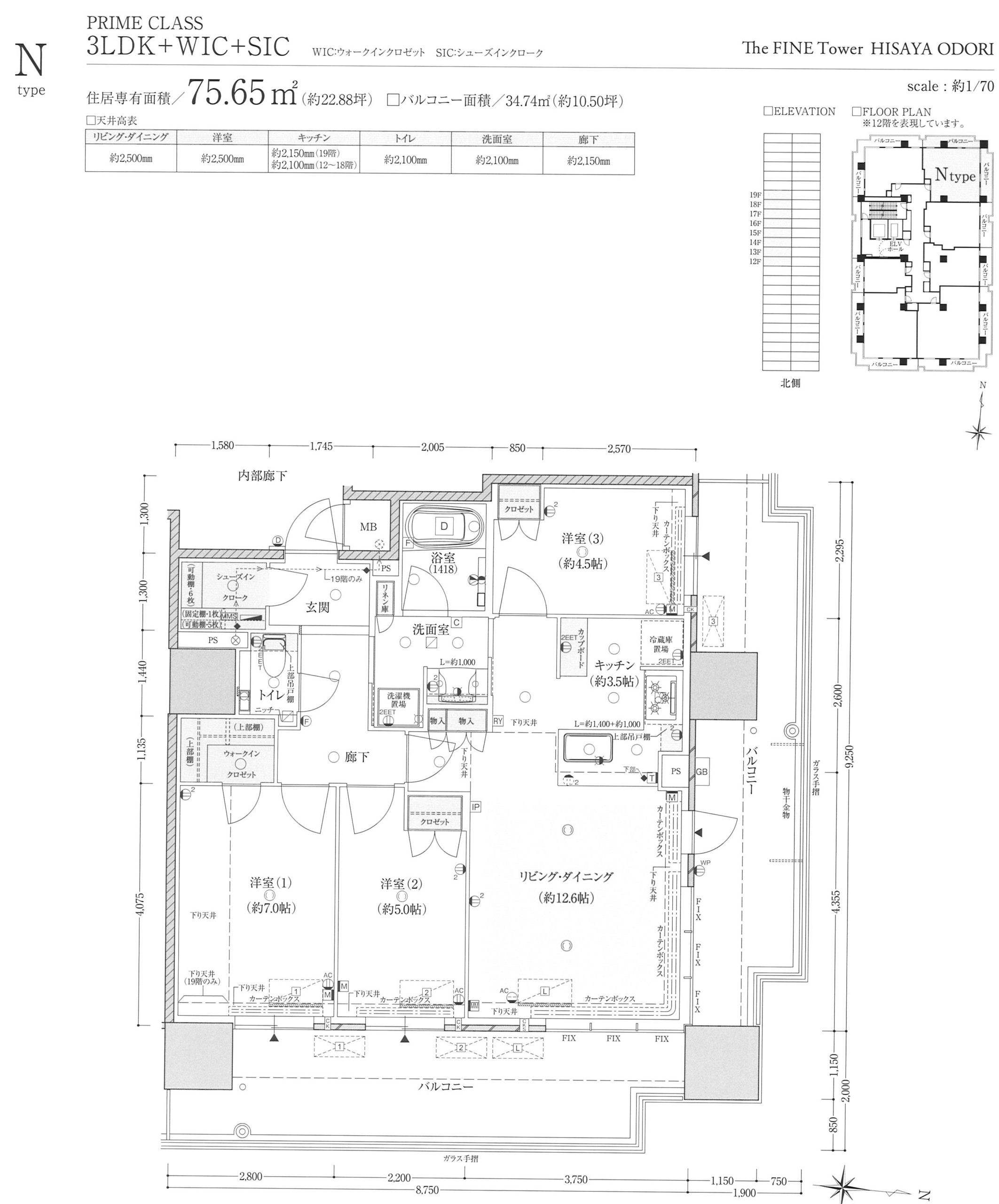
Gタイプ/Nタイプ
画像出典:ザ・ファインタワー久屋大通プランブックより
面積:70.30㎡(3LDK)※Gタイプ
面積:75.65㎡(3LDK)※Nタイプ
【坪単価イメージ】
6階:319万円/坪前後(6,790万円想定)※Gタイプ
14階:367万円/坪前後(8,390万円想定)※Nタイプ
GタイプとNタイプは北東向き角部屋で、この角部屋はリビングの角のど真ん中に柱が来ており、角部屋の良さが少し削がれたプランになっています。
一方で、Gタイプは南側の角部屋と比較して坪単価差が5-6万程度しかないのでお得感は薄いです。
Nタイプは同等のプランがないですが、他の3LDK角部屋の坪単価との価格差が大きく、12-19階の3LDKで唯一1億円以下で買える部屋があります。
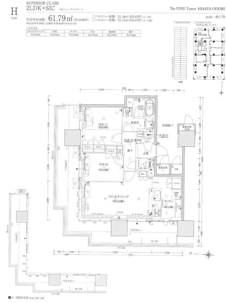
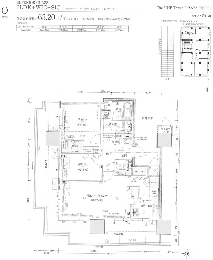
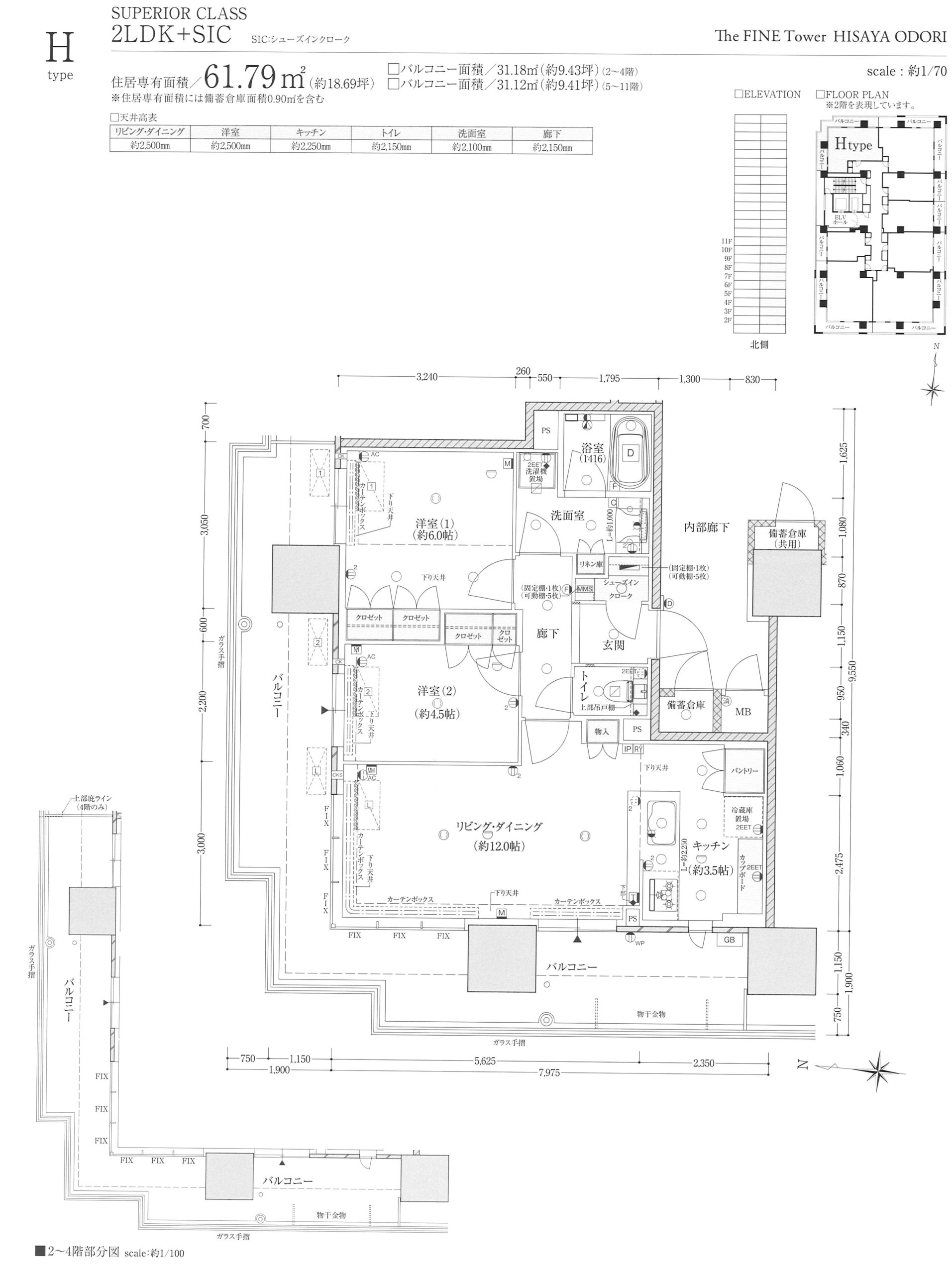
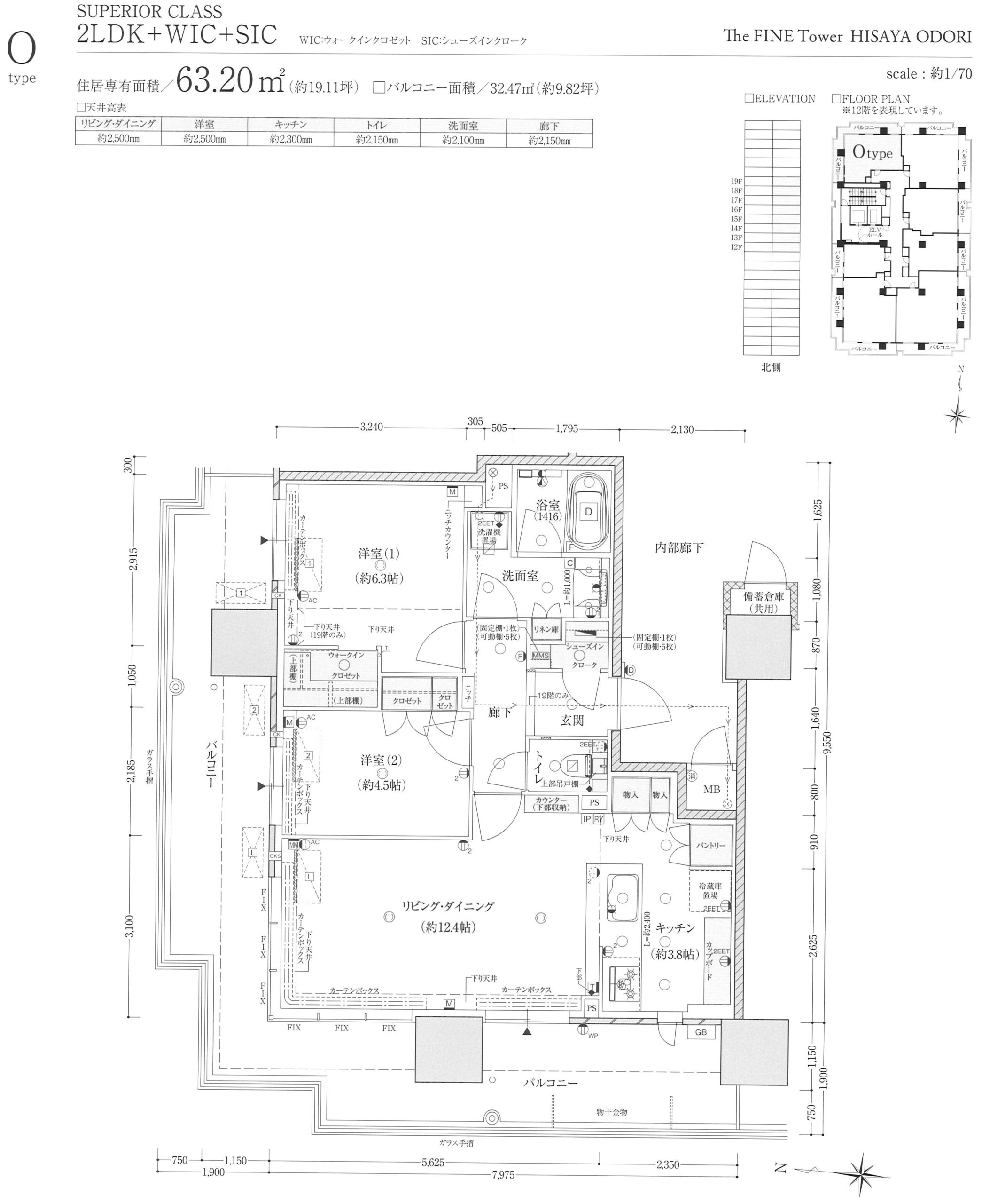
Hタイプ/Oタイプ
画像出典:ザ・ファインタワー久屋大通プランブックより
面積:61.79㎡(2LDK)※Hタイプ
面積:63.20㎡(2LDK)※Oタイプ
【坪単価イメージ】
6階:299万円/坪前後(5,590万円想定)※Hタイプ
9階:310万円/坪前後(5,790万円想定)※Hタイプ
14階:365万円/坪前後(6,990万円想定)※Oタイプ
HタイプとOタイプは北西向き角部屋で、Hタイプは最も坪単価が抑えられたプランになっています。
Hタイプは北西という方角の優位はないですが、眺望的にも悪くない方角になっているので、コインパーキングの敷地に建物ができる不安はありますが、このマンションの中ではお得感のあるプランだと思います。
Oタイプは条件はほぼ同じで階が上になっていますが、坪単価にはかなりの差があり、お得感はなくなっています。
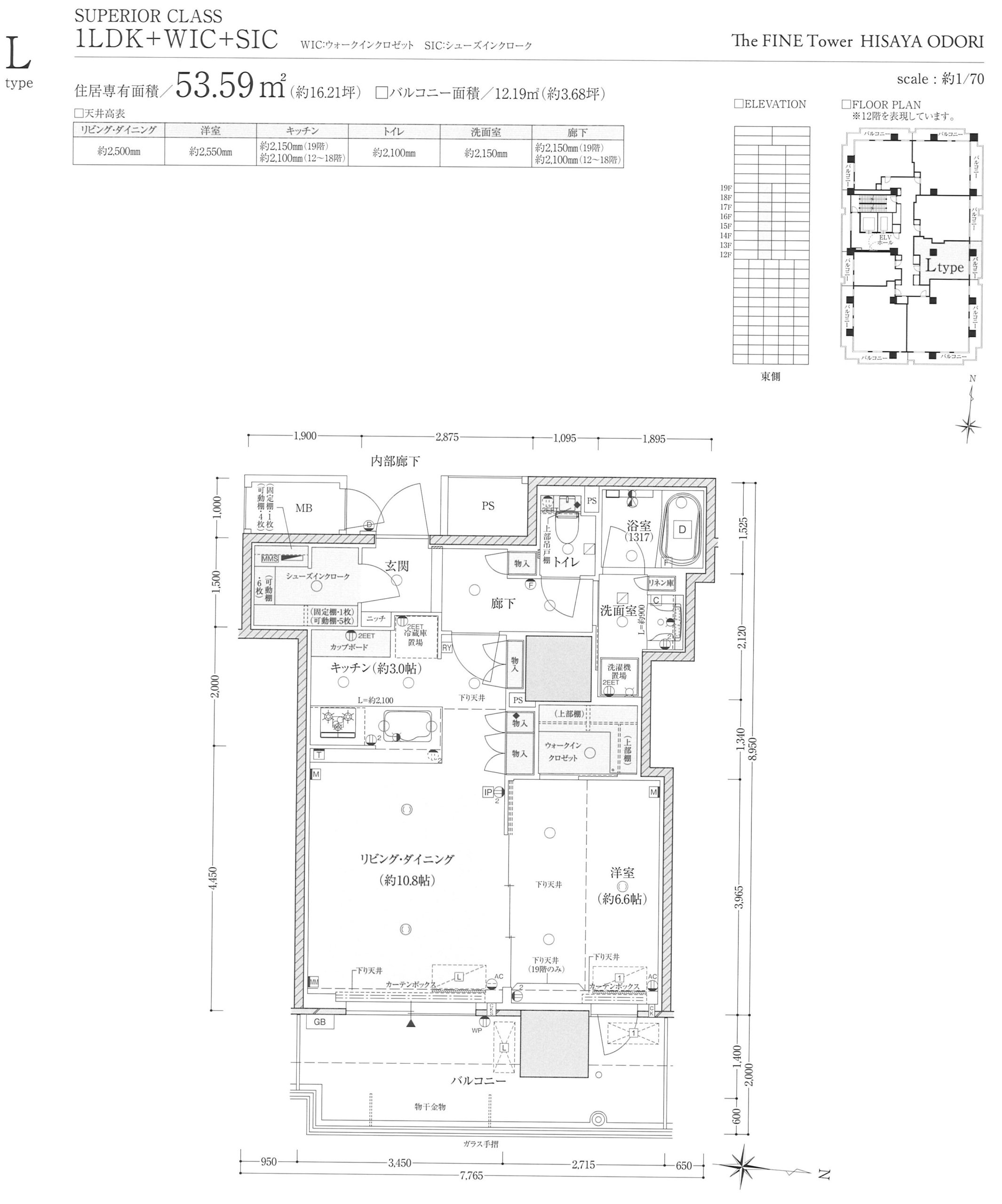
Lタイプ
画像出典:ザ・ファインタワー久屋大通プランブックより
面積:61.79㎡(2LDK)
【坪単価イメージ】
14階:363万円/坪前後(5,890万円想定)
Lタイプは東向きの中住戸で、隣接の建物は超えてくる分、11階までの住戸よりも坪単価が高くなっています。
今回は以上です。
次回は最後のまとめを少し書きます。
皆様の参考になれば幸いです。
(参考)詳細価格表
画像出典:ザ・ファインタワー久屋大通価格表より作成
見づらい場合もあるかと思うのでPDFファイルも用意しました。





















コメント