プラウドタワー栄のモデルルームを訪問しましたので報告致します。
本物件は、残戸数や規模等の関係から、位置づけとしては今後の価格参考としてのご報告させていただきます。
そのため、普段は4回程度に分けて報告するのですが、2回程度の概要報告となります。
前回は物件概要等についてまとめました。
今回は価格を中心に以下の内容についてまとめます。
・駐車場について
・価格と管理費について
・まとめ
駐車場について
付帯率
駐車場は全96戸に対して32台分用意されています。
付帯率は約33.3%です。
基本的には上層階プレミアム住戸については駐車場が確約されており、それ以外に確約はなく、中古や先着順の購入の場合はほぼ駐車場は付かないと思っておいた方が良さそうです。
ざっと調べたところ、周辺の月極駐車場の相場が2-4万円程度のため、下記の価格からしても空きさえあれば外部の駐車場がそこまで割高というわけでも無さそうではあります。
駐車場価格
駐車場の価格は以下の通りで、全て機械式ということもあり条件による価格差は少ないです。
- 乗用車(14台):高さ1,550mmまで
→33,000円 - ミドルハイルーフ(7台):高さ1,800mmまで
→34,000万円 - ミドルハイルーフEV対応(1台):高さ1,800mmまで
→34,500万円 - ハイルーフ(10台):高さ2,050mmまで
→35,000万円
なお、高さ以外の制限は、
全幅2,050mm以下
全長5,300mm以下
重量2,300kg以下(※総重量ではない)
で同一です。
価格と管理費
坪単価は概ね300万円前半といった価格感です。
管理費と積立修繕費の平米単価は、
管理費:226円/平米
修繕費:158円/平米
程度となっています。
プラウドタワー名古屋錦と比べるとやや安くなっていますし、週3日のコンシェルジュサービス、内廊下であることを考えれば妥当だと思います。
一方で、やはり間取りが相当厳しく、免震構造にもかかわらず柱が思いっきり食い込んでいる間取りが多く、Eタイプに至っては超横長の部屋が存在しているなど、ある程度間取りとしての使い辛さは覚悟が必要だと思います。
以下は各プランの詳細です。
スポンサーリンク
Bタイプ
画像出典: プラウドタワー栄公式ホームページ
8階 6,698万円 坪単価307.2万円
管理費・修繕積立金等合計:28,800円/月(予定/当初)
想定賃料:21-25万円程度
Bタイプは8Fということもあり、坪単価的には一番恵まれていますが景色は良くないです。
とはいえ隣接物件の距離を考えれば圧迫感が強いわけでは無さそうなので、景色を求めないならアリです。
Dタイプ
画像出典: プラウドタワー栄公式ホームページ
11階 6,598万円 坪単価325.0万円
管理費・修繕積立金等合計:26,900円/月(予定/当初)
想定賃料:20-24万円程度
Dタイプは坪単価的には比較的高めですが、景色は抜けているので、そこを重視するならBタイプよりは良いと思います。
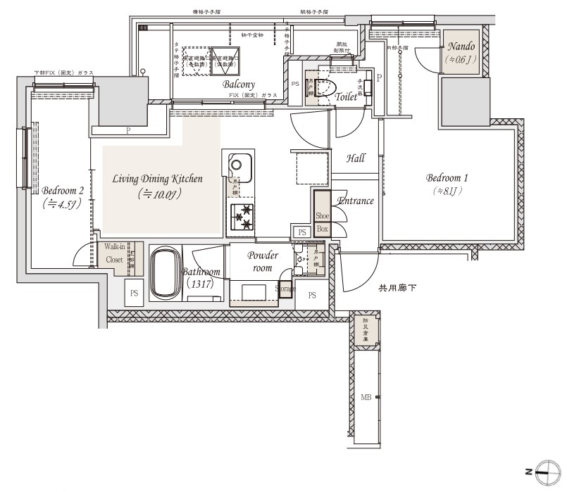
Eタイプ
画像出典: プラウドタワー栄公式ホームページ
14階 5,198万円 坪単価311.6万円
管理費・修繕積立金等合計:22,300円/月(予定/当初)
想定賃料:17-22万円程度
Eタイプはやはり間取りが厳しく、10畳のリビングとその4.5畳のベッドルームの使い勝手が悪いです。
もはやどちらかと言うと1LDKとしての利用を想定していると言っても過言ではないレベルです。
一方で、景色は抜けているので悪くはないです。
まとめ
かなり駆け足でご紹介しましたが、以上となります。
正直なところ、栄に住むのであればこれ以上の物件はなかなか出てこないということを考えると、セカンドハウスor投資目線で買うという意味はあると思います。
やはりこの物件のメインターゲットは
- セカンドハウスとしての購入
- 資産価値を重視する共働きの若い夫婦
- 相続対策も睨んだリタイヤ世代
であるのは間違いなく、購入者もほぼこの層のようです。
前回ご紹介した学区の小学校、中学校も好き嫌いが分かれる学校であるのは間違いなく、居住者にファミリー層が少ないことを考えると、やはり上記メインターゲットに合致する世帯が合う物件だと感じました。
繰り返しになりますが、この物件は再開発が著しい栄エリアの好立地マンションのため、資産価値を重視する方には非常に向いていますが、ファミリー層がゆったりと暮らす、というイメージには合致しない可能性が高いので、検討する際はよく考えるべきマンションだと思います。
今回は以上です。
皆様の参考になれば幸いです。







コメント